Vaste appartement rénové de 5,5 pièces au 2ème étage avec deux balcons en plein coeur du village de Travers.
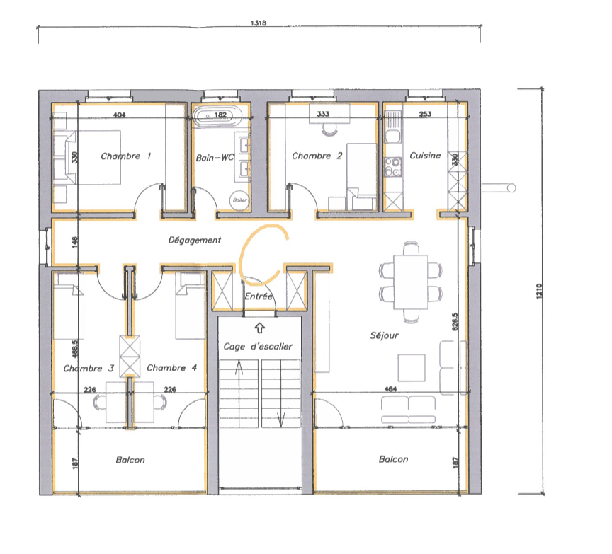
Appartement de 5,5 pièces d’une surface habitable de 104 m2 occupant l’intégralité du deuxième étage, traversant d’Est en Ouest et bénéficiant de deux balcons.
L’appartement est disposé comme suit :
- cuisine agencée
- grand salon avec balcon d’environ 18 m2.
- hall d’entrée avec penderie
- 4 chambres, dont 2 avec balcon
- salle de bain avec baignoire
- cave
- garage
Le bien a fait l’objet de rénovations en 2024 : les peintures et les revêtements de sols ont été entièrement refaits, et les fenêtres ont également été remplacées la même année.
L’immeuble est constitué en PPE de 4 appartements. Construit en 1989, il a fait l’objet de rénovations au fil du temps garantissant son bon entretien.
Le système de chauffage central fonctionne au gaz et a été remplacé en 2012. Chaque appartement est également équipé d’un chauffe-eau électriqué et d’un compteur individuel d’eau.
Des panneaux photovoltaïques ont été installés en 2020, contribuant à une meilleure efficacité énergétique du bâtiment.
D’autre part, un adoucisseur d’eau a été mis en place en 2022.
Situé au coeur du Val-de-Travers, le village de Travers bénéficie d’un environnement naturel préservé et d’un cadre de vie paisible, tout en restant bien connecté aux centres urbains régionaux.
N’hésitez pas à nous contacter pour tout renseignement complémentaire. Nous nous ferons un plaisir de vous renseigner.

